捷克克尔科诺谢山小木屋Product
首页 > 捷克克尔科诺谢山小木屋捷克克尔科诺谢山小木屋
建筑设计: Znameni Ctyr Architekti
位置: Krkonoše Mountains National Park, Czech Republic
年份: 2014
摄影: Tomas Soucek
作为这个项目的设计师,我们做出的最基本的努力和建筑设计理念是修建一栋新的山中小屋,以取代原始的、已荒废的小屋,原始的小屋已经被拆除了。我们的目标不仅是修建一栋从建筑学领域的观点上认为好的建筑物,同样要将这栋建筑物设计成自然环境的一部分,并以积极的方式帮助去形成一个地方的特色。除了客户对视觉、技术和当代类型上的要求,我们不可能忽视强烈的地方特色,和周围的质量建筑物一样,小屋极具克尔科诺谢山当地的典型建筑特色。
这个元素是当地的识别符号,它是在克尔科诺谢山的历史发展长河中形成的一种价值。它与Transcarpathian 和阿尔卑斯山小屋展现出的原则是相似的。同时,我们强烈的察觉到了本地的当代建筑物例证,这是由其他的设计师设计建造的,这位建筑师有意的忽视了这种审美价值,他的目标是设计一w个清晰的现代外观建筑物。我们的最基本的努力受到了传统建筑的启发,尝试通过稍微的延期,并通过建筑学的语义来鉴定二十一世纪当代时期的经过设计的建筑物。(Archdaily 文字翻译:筑龙网-蝈蝈)
Chalet in Krkonoše / Znameni Ctyr Architekti
Architects: Znameni Ctyr Architekti
Location: Krkonoše Mountains National Park, Czech Republic
Year: 2014
Photographs: Tomas Soucek
From the architect. Our primary effort as designers of this project and architectural concept of this house was to design a new mountain chalet to replace existing dilapidated chalet which had been demolished. The aim was not only a creation of quality concept from an architectural point of view, but also for it to be a part of natural environment and help to shape genius loci in a positive way.
Despite the primary impulse of the client to visually implement, technologically and typologically contemporary object, it was impossible to ignore strong vernacular element identical with the surrounding quality buildings forming typical character of local architecture of Krkonoše mountains. This element acts as a local identification symbol, which is a value created over the long historical development of Krkonoše mountain.
It is a similar principle which generally appears in Transcarpathian and Alpine mountain chalets.
At the same time we strongly perceive examples of contemporary realizations in the local area by other architects who intentionally ignore this aesthetic value with the aim to clearly attain modern appearance.
Our primary effort was to be inspired by traditional architecture /to mention among others the original images of existing chalet based on archive plans/ and try by means of slight deferral of meaning and architectural semantics identify the designed house with the contemporary period of 21. century.
Typical part of typology and semantics of vernacular mountain chalets is a projection of function of each individual part of a house into the exterior appearance /functional morphology/
For example living spaces / living room, dining room, kitchen/ are articulated by numerous window openings with the largest dimensions in the facades on the ground floor
Small bedrooms are located on the upper levels / mostly attics and mansard roofs/ where day light is provided by smaller windows in gables, or dormer windows. Technical windows in stone pedestal wall complete the overall appearance.
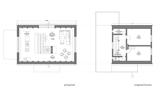
The deferral of meaning mentioned previously we applied in this project by placing the main living space on the upper level and with the open maisonette.
This concept has analogically articulated itself with traditional practices by enlarged window openings on the upper level and smaller windows on the ground floor.
Interior of the upper levels designed chalet utilizes in maximum way the construction advantages of laminated wooden trusses which are used in construction of the whole roof.
This type of construction method of the attic made it possible to open up the interior space to the full height and thereby unexpectedly gain new scale of the house in comparison with its limited exterior dimensions.
The open living space drawn up in this way additionally enables unrestricted view in all directions and despite it´s placement on the upper level provides exceptional visual interaction with the surrounding natural countryside.
Exterior appearance of the house is intentionally inspired by original architectural of Krkonose mountains and uses the design elements of solitary mountain architecture – chalets. These types of houses have characteristic features such as banked roof massing above wooden base , stone pedestal wall and traditional wooden facing on the gable wall.
The gable walls of chalets in Krkonose mountains are often stepwise overhanged above the ground level. Our design utilizes this characteristic element and transforms this stepwise overhang into a gradual extension of the gable wall in the outward direction, so the crest of the roof is visibly longer than the actual length of the house and its base.
This solution has even a practical value, because it protects the wooden facing of the gable wall against the weathering and prolongs the lifespan of the wooden material.
This type of design approach is a direct reference to contemporary architecture often using non structural logic of outward deflecting mass above their base. The facing of the facade consistently consists of natural materials, which gain patina over the time period during aging process that is considered as desirable in traditional architectural.
This house with its low ceiling height and careful placement in the sloping terrain acts as if the house had grown from the surrounding nature, and the main attention itself by the viewer is drawn by a silhouette of the roof massing.
The house itself is characterized by the brown and gray shades of color and a combination of wooden material with natural stone. The wooden facing is made of red cedar, exterior structural elements such as beams and columns are made of laminated spruce coated with copper varnish.
The pedestal of the house has a massive 15 cm thick facing made of cleaved granite flagstone.
The roof made of Copper sheet was designed with fan like shape rebated joint for the purpose of highlighting effect in the upward direction of the extending massing of the house. The windows are made of laminated massive oak profiles treated by natural oil varnish.
























浙公网安备33071802888968号