RT住宅Product
首页 > RT住宅RT住宅
建筑设计:Jacobsen建筑事务所
项目位置:巴西,Laranjeiras – RJ
项目建筑设计师:Paulo Jacobsen, Bernardo Jacobsen
项目团队:Edgar Murata, Jaime Cunha Jr, Christian Rojas, VeridianaRuzzante
建筑面积:470.0平方米
建成时间:2014年
摄影:Pedro Kok
室内设计:EzaViegas (Jacobsen Arquitetura)
室内设计团队:HeloísaZarpelon, Isabel Benoliel, Caroline de Oliveira
景观设计:RenataTilli
照明设计:Lightworks
电气设计:GRAU Engenharia
暖通设计:GRAU Engenharia
音频及视频:Home System
屋顶:Oscar MassaoKawaguti
木质构架:Oficina de Marcenaria
结构:EDATEC Engenharia
施工:SC Consult / ParatyEngenharia
基地面积:1000 平方米
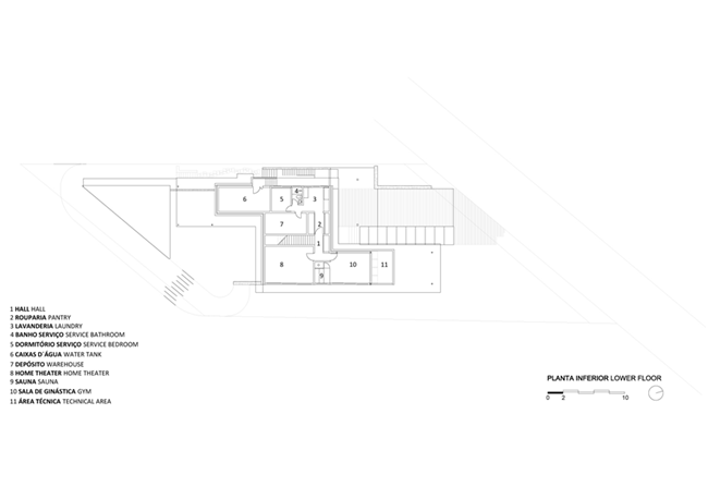
该项目旨在开发一栋视觉看起来是埋入式的两层住宅。为了实现这一点,我们将住宅的主要楼层提高1.5m,创造了一处半地下的楼层,也有自然的采光和通风。在这一层设计有服务和休闲区域,例如家庭影院、健身房和桑拿房。
在入口楼层,公共区域和私密区域分别位于两个体量相似的矩形体块中,这两个体块平行布置,但相互错位。两个体块通过屋檐的悬挑连起来,创造了房子外部可独立使用的流通空间。起居室基本与地面平齐,因此它位于更高的这一层中。
从街道角度上看,建筑和地面分离,看不到底下那一层。尽管受业主委托使用了坡屋面和瓷砖,但是建筑看起来就像是平屋面,从外部只能看到木质的屋檐和玻璃。我们创造了只能从内部才能看到的最小坡度屋面。受限于建筑边界,游泳池设计成了三角形。从结构形式上看,我们在基础和半地下层部分使用了钢筋混凝土结构,在主楼层部分使用了柱和钢梁,屋顶采用了木质结构。主要装饰材料选用了炭化木材和石灰华大理石。(Archdaily 翻译:建筑学院-杨海洲)




















		
		

                
                
浙公网安备33071802888968号