“漂浮”于谷底的Swett住宅Product
首页 > “漂浮”于谷底的Swett住宅“漂浮”于谷底的Swett住宅
建筑设计:Prado建筑事务所
位置:智利,比奥比奥大区,奇瓜扬特市,奇瓜扬特区
项目建筑师:Cristian Prado, Tomas Prado, Raúl Espinoza
合作者:Katia González, Daniel Pinilla
建筑面积:377.0平方米
建成时间:2014年
摄影:Daniel Pinilla
结构:Juan Marcus Schwenk
照明:Oriana Ponzini
景观设计:Macarena Opazo
图片提供:Archdaily
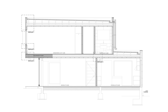
来自建筑师的介绍:项目的场地处于Schaub de Chiguayante分区东北部群山环绕的狭窄山谷的底部。这里得到日照的时间短暂,所以项目的设计构思是提升高度,让所有的房间获得更多的日照。
首先要为建筑寻找最大的可用面积,因为在1295平方米的场地上,40%都是陡峭的斜坡。我们的想法是采用一系列细小钢截面的柱子,并且使用玻璃围合一层的社交区域、起居室、餐厅、烧烤区和厨房,以保持室内外紧密的联系。最低限度地使用钢和玻璃支撑上层平台,上层布置了私密性的卧室和起居室。
从夹楼的大跨度托梁到隔墙和屋顶,建筑的整个二层都由木材打造。
长长的带形窗平整透明,四周有扁平的遮阳板似的钢板外框,强化了房子的水平体量。停车场、房子的走道和卧室的两翼都试图摆脱地面的锚固,展现一种轻盈之态,像是要漂浮在场地之上。(文字翻译:建筑学院-王峰)
Swett House / Prado Arquitectos
Architects: Prado Arquitectos
Location: Chiguayante, Chiguayante, Bío Bío Region, Chile
Project Architects: Cristian Prado, Tomas Prado, Raúl Espinoza
Collaborators: Katia González, Daniel Pinilla
Project Area: 377.0 m2
Project Year: 2014
Photographs: Daniel Pinilla
Structures: Juan Marcus Schwenk
Lighting: Oriana Ponzini
Landscape: Macarena Opazo
From the architect. The project is located on a site located at the bottom of a narrow valley surrounded by hills; in the northeastern end of the Schaub de Chiguayante subdivision; a territory with short periods of sun exposure, so the conceptual idea of the project was to try to gain height to improve the sun exposure in all rooms.
The location of the volumes on the ground sought to maximize its available surface, as from the 1295 m2 of land, 40% is part of the steep slopes of the hill.
The idea was to create a sort of series of columns made of small steel profiles, and a glass enclosure to contain the social areas; living room, dining room, barbecue and kitchen on the first level, maintaining a close relationship between the exterior and interior space, plus supporting with minimal materiality (steel and glass) the platform for the upper level that houses the private premises as living room and bedrooms.
The entire second level of the building is designed in wood, from the mezzanine made of I JOIST beams for larger spans, to the partition walls and roof.
The horizontal fenestration, with long, transparent and continuous planes framed with steel plates like a visor, ratify the horizontal volumes that make up the house, like the parking and covered walkway to the house and the two wings of bedrooms, all trying to break free of the anchorage of the ground, looking for an expression of lightness, which does not touch the hill or the site.





















		
		

                
                
浙公网安备33071802888968号